complete my house
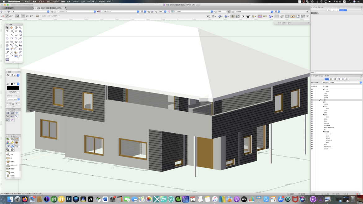
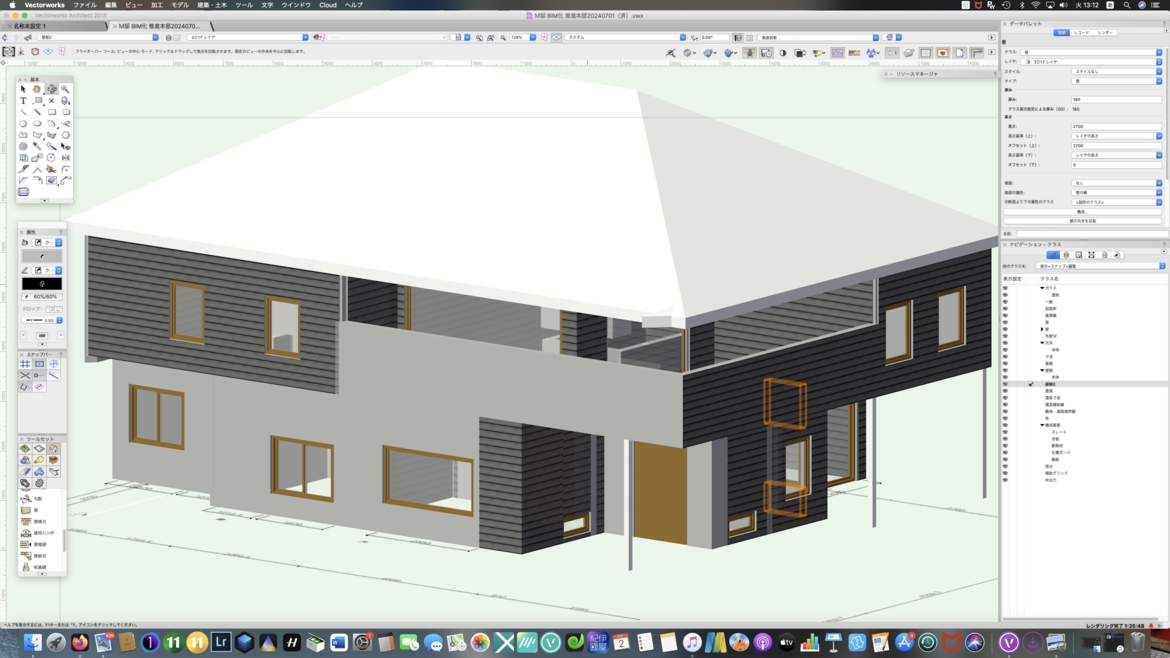
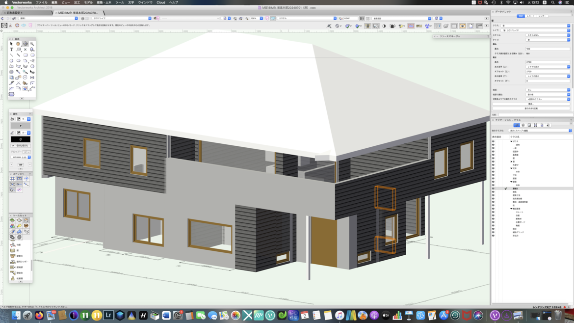
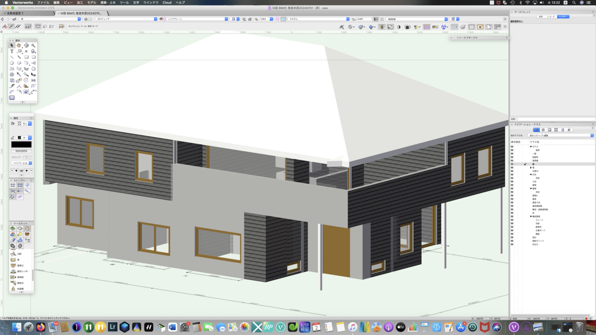
外観と内観
planning
設計を終えて
設計主旨
ロケーションをあえて選択
都心は土地が高いですが、地方や郊外には上物にお金をかけられるという強みがあります。自分が住むのであれば、本棚が足りない、パソコン室が足りない、プリンターが置けないなど別棟を計画しての最低限の家です。主寝室には、妻の専用クローゼットと本棚と化粧台を。夫には、読書灯に読書の本が1冊あれば良いという潔さを演出しました。
生活を楽しむ舞台装置
21世紀のスタンダード住宅
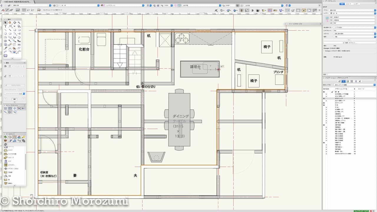
この家は、1階には大勢の来客に備えての和畳(琉球畳など)を設置し、ゴロンとなれなますし、宿泊も4人までであれば可能です。そして、来客時に親夫婦に遠慮することなく飲水、食事(軽食)出来るように談話室があり、寛ぎながら眺めを堪能出来ます。ちょっと設定の方法で外壁などが完全に表示されませんが、オーディオも楽しめる4人家族にお薦めな新規格の標準住宅の提案です。
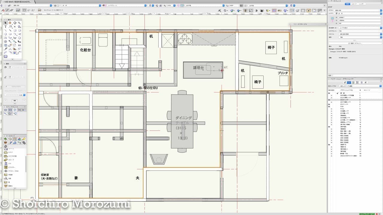
書斎は家族共有スペース
勉強はリビングテーブルで
駐車場は1台だけれども、客人を迎え入れる家族はいつでもどこでも楽しめる仕掛けの詰まったカラクリ屋敷。
200㎡(60坪)が持て囃されていた時期の空き地が売りに出され始めた今から始める郊外の穴場物件を貴方好みの生活空間に変えてみませんか。
今までの間取りでは幸せな生活は送れません。断言します。
